Déclaration Préalable - Bungalow 35m²

📍 Médoc (33) 📅 Février 2026 👤 TelecEtudes
Déclaration préalable
Rendu 3D du projet
TelecEtudes telecetudes.fr

📋 Pièces du dossier

DP01 - Plans de situation

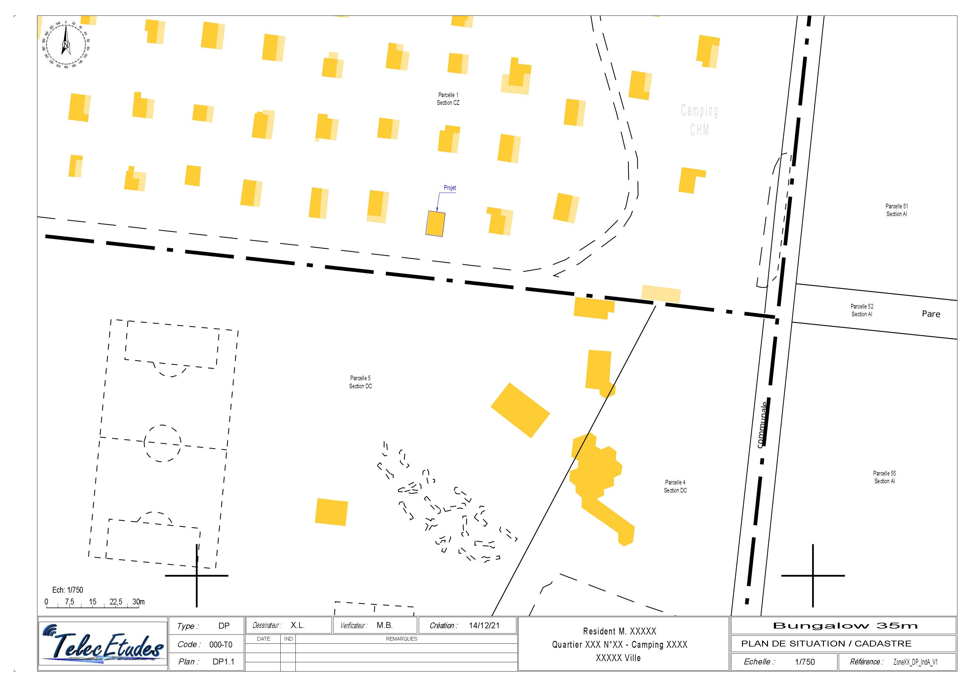
Situation Cadastre

DP01-1 - Situation Cadastre

429 Ko
Carte IGN

DP01-2 - Carte IGN

239 Ko
Localisation Camping

DP01-3 - Localisation Camping

2.4 Mo
Localisation Ville

DP01-3 - Localisation Ville

245 Ko

DP02 - Plans de masse

Masse Existant

DP02-1 - Masse Existant

826 Ko
Masse Implantation

DP02-2 - Masse Implantation

899 Ko
Masse Projet

DP02-3 - Masse Projet

229 Ko
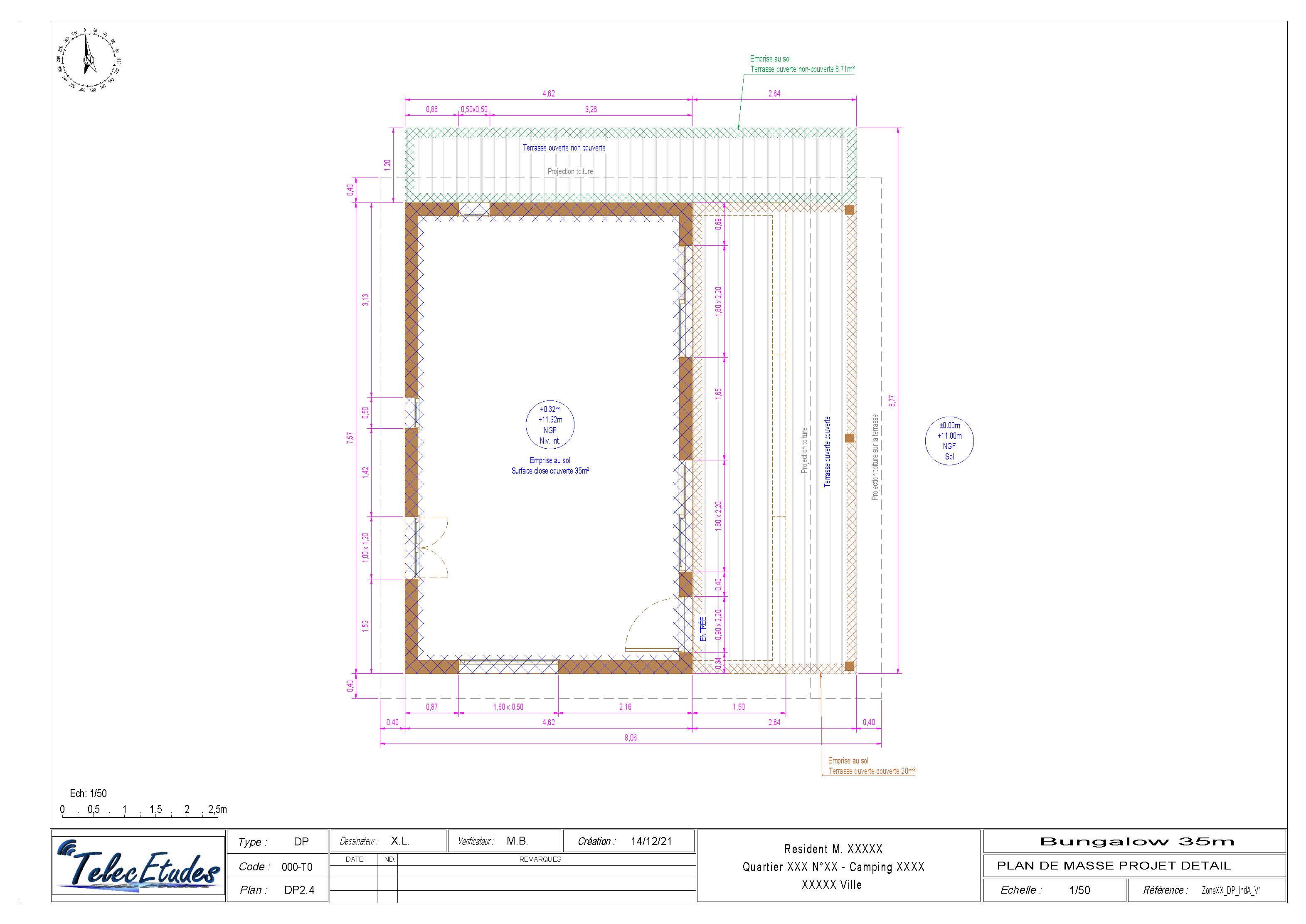
Masse Détail

DP02-4 - Masse Détail

71 Ko

DP03 - Coupe

Coupe du terrain

DP03 - Coupe du terrain

120 Ko

DP04 - Élévations

Élévation Existant

DP04-1 - Élévation Existant

95 Ko
Élévation Projet

DP04-2 - Élévation Projet

113 Ko

DP06-07 - Insertion et Environnement

Photomontage

DP06 - Photomontage

2.4 Mo
Environnement

DP07 - Environnement

2.4 Mo